- Woonoppervlakte
- Circa 136 m²
- Perceeloppervlakte
- Circa 318 m²
- Bouwjaar
- Gebouwd in 1993
- Aantal kamers
- 4 kamers (3 slaapkamers)
Aan een rustige, autoluwe straat en grenzend aan openbaar groen met een grote vijverpartij ligt deze fraaie en ruime extra verduurzaamde twee-onder-een-kapwoning met inpandige garage.
In de ruim opgezette en kindvriendelijke nieuwbouwwijk De 5e Verloting staat deze royale gezinswoning met twee slaapkamers en de mogelijkheid om op de tweede verdieping een derde én eventueel vierde slaapkamer te realiseren. De wijk grenst direct aan het Terheylsterbos, waar u heerlijk kunt wandelen tot aan het nabijgelegen dorp Nietap.
Woonoppervlakte: 136 m²
Inhoud: 568 m³
Perceeloppervlakte: 318 m²
OMSCHRIJVING
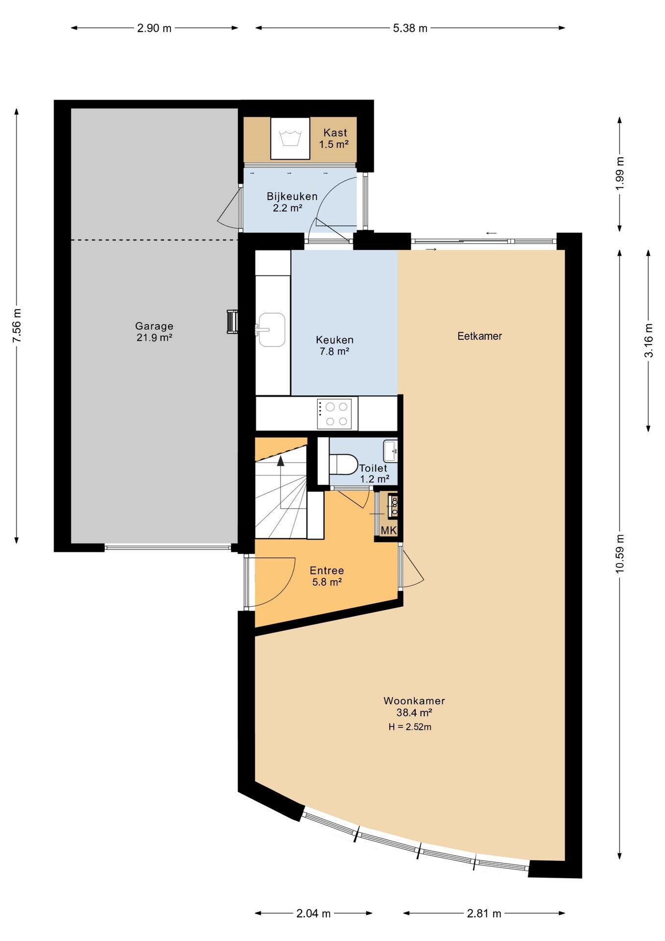
De woning is oorspronkelijk gebouwd in 1993 en is recent verduurzaamd met onder andere HR++ beglazing, acht zonnepanelen en extra (Tonson) vloerisolatie. Een bijzonder praktisch element is de directe doorgang van de keuken via de bijkeuken naar de inpandige garage. Deze ruimte fungeert zo als een logisch verlengstuk van de woning.
Meer zien? Bezoek de uitgebreide woningwebsite karspel7.nl voor alle informatie.
Liever eerst digitaal rondkijken? Maak gebruik van de 360°-tour onder de foto's en wandel virtueel door de woning — zo ontdekt u elke ruimte tot in detail!
OMGEVING
De wijk is ruim opgezet, groen en rustig gelegen op korte afstand van bos en natuur. Het levendige en gastvrije Drentse dorp Roden biedt een breed scala aan winkels, sportvoorzieningen en horecagelegenheden, omringd door prachtige natuur.
Steden als Groningen en Assen zijn binnen respectievelijk 15 en 20 minuten bereikbaar. Ook rijden er meerdere keren per uur bussen richting Groningen – ideaal voor woon-werkverkeer.
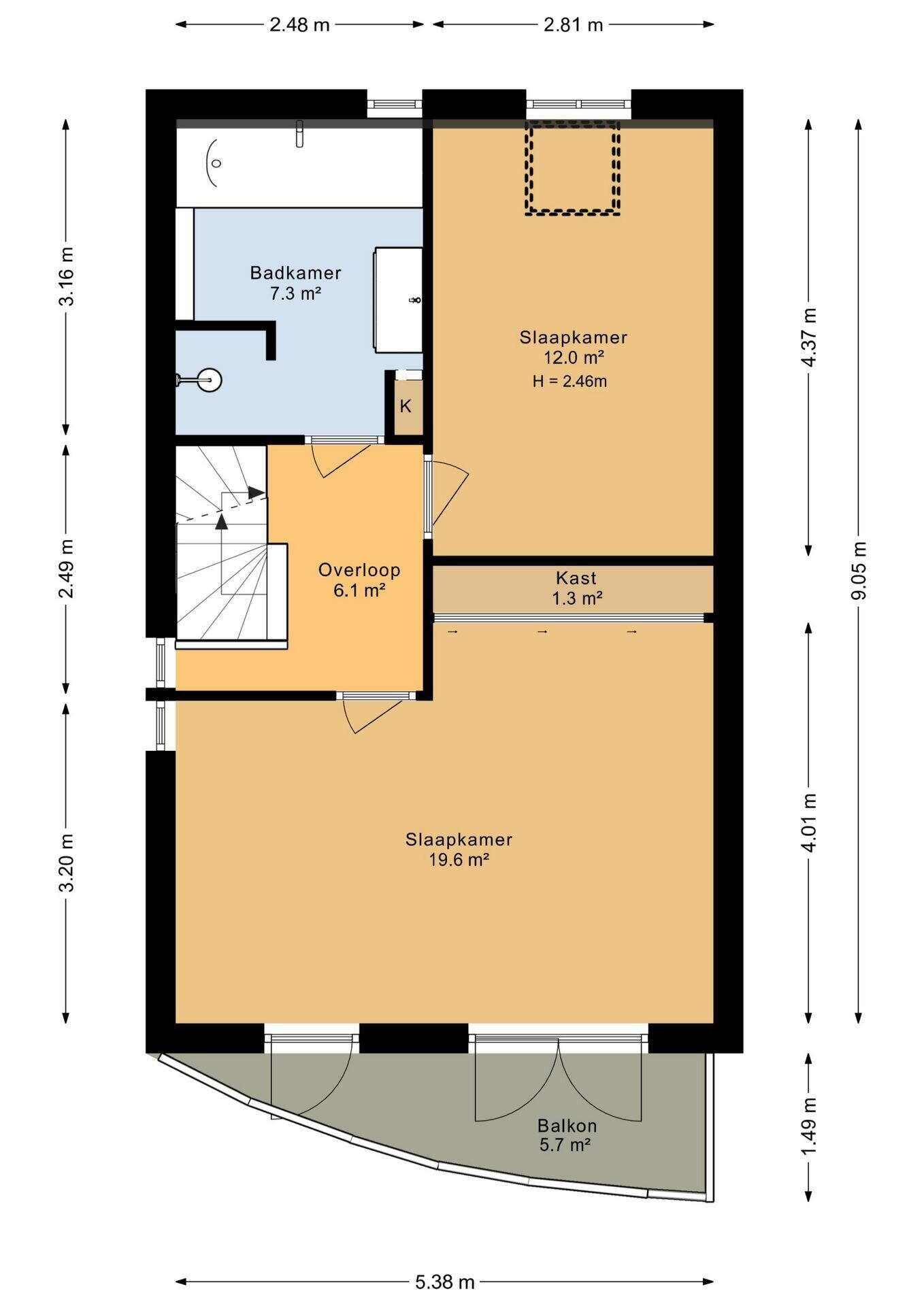
INDELING
Begane grond:
Ruime hal/entree, toilet, L-vormige woonkamer met schuifpui naar de tuin en open keuken (samen ca. 46 m²), bijkeuken met achterdeur en toegang tot de grote inpandige garage voorzien van bergzolder en royale voorraadkast.
Eerste verdieping:
Overloop, twee ruime slaapkamers (voorheen drie; eenvoudig terug te brengen), beide met vaste kastruimte. Grote badkamer met ligbad, douche, tweede toilet en wastafelmeubel.
Tweede verdieping:
Royale zolderverdieping met volop mogelijkheden voor het creëren van eventueel één of twee extra slaapkamers
Tuin:
In de zonnige, 14 meter diepe achtertuin kunt u tot in de late uurtjes genieten van zon, rust en privacy. Kinderen kunnen veilig spelen in het aangrenzende openbaar groen en op het nabijgelegen speelveld.
BIJZONDERHEDEN
Moderne keuken met inbouwapparatuur
Volledig geïsoleerd
HR++ beglazing
Extra (Tonson) vloerisolatie
Centrale afzuiging
Onze foto's zijn gemaakt met een standaardlens (geen groothoek), waardoor u een realistisch en eerlijk beeld krijgt van de ruimtes. Zo weet u precies wat u kunt verwachten bij een bezichtiging.
Nog beter inzicht? Bekijk de digitale rondleiding voor een gedetailleerde indruk van de indeling en de ruimtes. Lees de volledige omschrijving
Overdracht
- Vraagprijs
- € 450.000 k.k.
- Status
- Verkocht
Bouw
- Object type
- Eengezinswoning, 2-onder-1-kapwoning
- Soort bouw
- Bestaande bouw
- Bouwjaar
- 1993
- Soort dak
- Samengesteld dak bedekt met pannen
Oppervlakte en inhoud
- Woonoppervlakte
- 136 m²
- Perceeloppervlakte
- 318 m²
- Inhoud
- 568 m³
- Gebouwgeb. buitenruimte
- 6 m²
Indeling
- Aantal kamers
- 4 kamers (3 slaapkamers)
- Aantal badkamers
- 1 badkamer en 1 apart toilet
- Badkamervoorzieningen
- Douche, ligbad, toilet, en wastafelmeubel
- Aantal woonlagen
- 3 woonlagen
- Voorzieningen
- Dakraam, glasvezelkabel, mechanische ventilatie, schuifpui, en zonnepanelen
Energie
- Energielabel
- A
- Energielabel registratie
- 17-09-2025
- Isolatie
- Dakisolatie, muurisolatie, vloerisolatie en volledig geïsoleerd
- Verwarming
- Cv-ketel
- Warm water
- Cv-ketel
- Cv ketel
- Nefit (gas gestookt combiketel uit 2007, eigendom)
Buitenruimte
- Ligging
- Aan rustige weg, aan water, in bosrijke omgeving, in woonwijk en vrij uitzicht
- Tuin
- Achtertuin, voortuin en zijtuin
- Afmetingen achtertuin
- 154 m² (14,00 meter diep en 11,00 meter breed)
Garage
- Soort garage
- Inpandig
- Capaciteit
- 1 auto
- Voorzieningen
- Elektra
Parkeergelegenheid
- Soort parkeergelegenheid
- Op eigen terrein
Energieverbruik in Roden
Energielabel deze woning
Energielabel A
Publicatie energielabel: 17-09-2025
Stroomverbruik per jaar
(Gemiddelde twee onder een kap in Roden)
Gasverbruik per jaar
(Gemiddelde twee onder een kap in Roden)
* Cijfers zijn afkomstig van het CBS en bedoeld als indicatie en kunnen verschillen voor deze woning
Indicatie hypotheeklasten
Eigen inleg:
Spaargeld / overwaarde
Rente:
Laagste 10-jaars rente
Laagste 10-jaars rente
2,78% - Woonfonds Groen Woonge... - NHG
3,04% - Argenta Groen Hypothee... - 80%
Laagste 20-jaars rente
3,18% - Argenta Groen Hypothee... - NHG
3,39% - Argenta Groen Hypothee... - 80%
Laagste 30-jaars rente
3,35% - Argenta Groen Hypothee... - NHG
3,56% - Argenta Groen Hypothee... - 80%
Hypotheek:
Bruto maandlasten: € 0 p/m
Netto maandlasten: € 0 p/m
Hoe berekenen we dit?
Het rentepercentage is gebaseerd op de laagste 10 jaars vaste rente voor één hypotheekdeel. De vermelde rente (3.04% zonder NHG) is gecontroleerd op 25-11-2025. Deze berekening is gebaseerd op een annuïteitenhypotheek die volledig wordt afgelost, waarbij de maandlasten gedurende de gehele looptijd gelijk blijven. De werkelijke rente en netto maandlasten kunnen variëren, afhankelijk van uw persoonlijke situatie en de hypotheekverstrekker. Raadpleeg een financieel adviseur voor een nauwkeurige berekening en advies. Aan deze berekening kunnen geen rechten worden ontleend; het dient enkel als indicatie.
Documentatie
Kadastrale kaart
Leefomgeving
BAG uittreksel
Plattegronden PDF
WOZ waarderapport
Brochure
Bezoek onze website
Bezichtiging
Bod uitbrengen
Waardebepaling
Zoekopdracht
Alles downloaden
Zonnegrenzen bekijken
Op de kaart
Inwoners in Roden
Cijfers voor postcodegebied 9302
- Totaal aantal inwoners
- 3400 inwoners
- Mannen
- 49%
- Vrouwen
- 51%
Inwoners in Roden
Cijfers voor postcodegebied 9302
- tot 15 jaar
- 19%
- 15 tot 25 jaar
- 12%
- 25 tot 35 jaar
- 21%
- 45 tot 65 jaar
- 33%
- 65 en ouder
- 14%
Huishoudens in Roden
Cijfers voor postcodegebied 9302
- Eenpersoons zonder kinderen
- 23%
- Meerpersoons zonder kinderen
- 33%
- Huishoudens zonder kinderen
- 56%
Huishoudens in Roden
Cijfers voor postcodegebied 9302
- Huishoudens met één kind
- 8%
- Huishoudens met meerdere kinderen
- 36%
- Huishoudens met kinderen
- 44%
Woningen in Roden
Cijfers voor postcodegebied 9302
- Woningen voor 1945
- 1%
- Woningen tussen 1945 en 1965
- 1%
- Woningen tussen 1965 en 1975
- 1%
- Woningen tussen 1975 en 1985
- 1%
- Woningen tussen 1985 en 1995
- 65%
Woningen in Roden
Cijfers voor postcodegebied 9302
- Woningen tussen 1995 en 2005
- 24%
- Woningen tussen 2005 en 2015
- 7%
- Woningen na 2015
- 4%
- Huurwoningen
- 20%
- Koopwoningen
- 80%
Overige in Roden
Cijfers voor postcodegebied 9302
- Gemiddelde WOZ waarde
- € 278.000,-
- Personen onder de 65 met uitkering
- Niet beschikbaar
Overige in Roden
Cijfers voor postcodegebied 9302
- Adressen per km²
- 920
- Stedelijkheid (schaal 1 op 5)
- 40%
Welkom bij Peter’s Makelaardij
Uw betrouwbare partner in onroerend goed in Roden en omstreken. Sinds 1986 is ons kantoor gevestigd aan de Brink 37 in Roden, waar onze ervaring en kennis van de lokale markt samenkomen om u optimaal te begeleiden bij het kopen, verkopen of huren van een woning.
Onder leiding van Peter Brandsma, die in 1995 het stokje overnam van zijn vader Cor, hebben wij een rijke historie opgebouwd in de makelaardij. Met meer dan 35 jaar ervaring is Peter niet alleen een deskundige makelaar, maar ook een betrokken adviseur die zich volledig inzet voor zijn klanten. Hij staat bekend om zijn no-nonsense aanpak en zijn vermogen om elke woning effectief in de markt te zetten voor de best haalbare prijs.
Bij Peter’s Makelaardij geloven we dat maatwerk essentieel is. Elke woning is uniek en vergt een eigen strategie. Daarom begint ons proces altijd met een vrijblijvend kennismakingsgesprek om uw wensen in kaart te brengen. Ons team, bestaande uit ervaren professionals zoals Germa Bijholt en Gerben de Vries, staat klaar om zowel bij de verkoop als bij de aankoop van uw woning te ondersteunen.
Onze klanten waarderen ons werk enorm, zoals blijkt uit een gemiddelde beoordeling van 9.2 uit 10 op Funda en Google. Wij zijn er trots op dat cliënten ons kenmerken als deskundig, vriendelijk en altijd bereikbaar. Wilt u samen met ons aan uw woonwensen werken? Neem gerust contact op voor meer informatie of schrijf u in om op de hoogte te blijven van ons nieuwste aanbod. Peter’s Makelaardij - uw makelaar in Roden!
Nieuwste reviews
-
Gouwland 28
Hele prettige samenwerking met Peter en zijn collega’s. Goeie kennis van de markt en een juiste strategie gehanteerd. Ondanks grote drukte r...
-
de Vennen 25
Het contact was zeer prettig en direct. De assistent-makelaar was zeer kordaat en nam snel actie wanneer wij daarom vroegen. De koopovereenk...
-
Lijsterbesstraat 72
Uitstekend altijd bereikbaar en zeer deskundig. Legt alles prima en geduldig uit. Een top makelaar.